GARAGE / POSTO AUTO VIA BERNARDINO ALIMENA – ROMA
- €95.250
- €95.250
Panoramica
- 14/07/2026
- 0
Descrizione
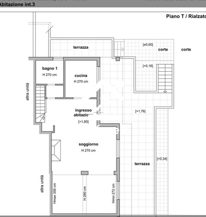
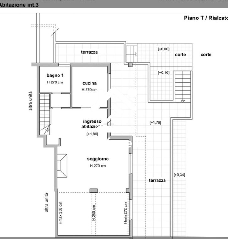
box auto pertinenziale, al piano S1, costituito da un vano unico collegato a mezzo di porta interna all’abitazione in villino pignorata di cui al Bene n. 1. lo stesso, accessibile a mezzo di rampa carrabile comune è dotato di serranda basculante. il tutto per una superficie convenzionale complessiva di mq 10,90 %% posto auto scoperto al piano terra, per una superficie convenzionale complessiva di mq 3,33 %% Abitazione in villino posta su due livelli (S1 – T) con corte esclusiva, così composta : al Piano Terra (rialzato) da ampio terrazzo in parte coperto (collegato alla corte esclusiva da scala esterna), ingresso – salone doppio, cucina, disimpegno e bagno. al Piano seminterrato (collegato al PT da scala interna) da vano passante, disimpegno, tre camere e due bagni. Tale piano risulta collegato all’ampia corte esclusiva a mezzo di cortiletto coperto a livello e rampa di scale. il tutto per una superficie convenzionale complessiva di mq 165,10
DATA ASTA 14 luglio 2026
OFFERTA MINIMA € 95,250.00
Indirizzo
Apri su Google Maps-
Indirizzo: Via Bernardino Alimena 30/g, Roma, Lazio, 000173
-
Provincia: Roma
-
Regione: Lazio
-
CAP: 000173
Dettagli
Updated on Aprile 20, 2026 at 12:02 pm-
ID Immobile 132741
-
Prezzo €95.250
-
Locale 0
-
Contratto Asta
-
Data asta 14/07/2026
Calcolo mutuo
-
Acconto
-
Importo totale del prestito
-
Rata mensile stimata
-
Assicurazione










