VILLINO VIA CARLO CASSOLA – ROMA
- €66.816
Panoramica
- Casa / Villa
- 03/06/2026
- 0
Descrizione
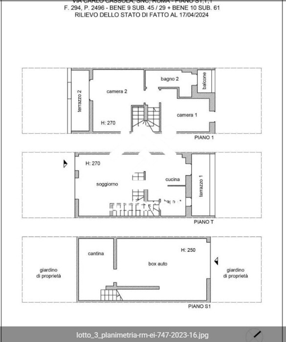
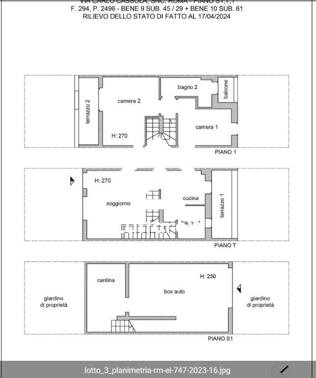
quota pari a 1/1 del diritto di proprietà su Villetta ubicata a Roma (RM) – Via Carlo Cassola snc, interno 11, piano S1 – T – 1 (undicesimo villino da sinistra su via C. Cassola) sviluppantesi su 3 livelli e così composta: al piano S1 da cantina e box auto. al piano terra da soggiorno con angolo cottura, bagno e terrazzo. al piano primo da 2 camere da letto, bagno, terrazzo e balcone. Con annessi due giardini di proprietà (giardino anteriore e posteriore). Con Garage interno 11, piano S1 e Posto auto interno 1, piano T. Il tutto per una superficie convenzionale complessiva di mq. 102,81 circa (Villetta e giardino). mq. 7,75 circa (garage). mq. 2,60 circa (posto auto). Confini:-Villetta: ad Ovest con unità immobiliare vicinale (sub 52-36) facente parte del medesimo complesso di villini a schiera. a Nord con strada di viabilità interna che collega l’area a parcheggio. a Est con unità immobiliare vicinale (sub 54-38) facente parte del medesimo complesso di villini a schiera. a Sud con via Carlo Cassola. Salvo altri-Garage: ad Ovest con unità box vicinale (sub 68) facente parte del medesimo complesso di villini a schiera. a Nord con giardino di proprietà del villino di cui è parte verso strada di viabilità interna che collega l’area a parcheggio. a Est con unità box vicinale (sub 70) facente parte del medesimo complesso di villini a schiera. a Sud con terrapieno sottostante il giardino di proprietà del villino, verso via Carlo Cassola. Salvo altri-Posto auto: ad Ovest con altra unità sub 2 area verde. a Nord con altra unità sub 6 posto auto. a Est con altra unità sub 4 area di manovra comune. a Sud con altra unità p.lla 2171 (altra proprietà). Salvo altri.Identificazione catastale all’NCEU:-Villetta: Foglio 294, Part. 2496, Sub. 53 graffato sub 37, Zc. 6, Categoria A7, Cl.3, Rendita € 759,19-Garage: Foglio 294, Part. 2496, Sub. 69, Zc. 6, Categoria C6, Cl.12, Rendita € 112,79-Posto auto: Foglio 294, Part. 2496, Sub. 5, Zc. 6, Categoria C6, Cl.8, Rendita € 28,20Il fabbricato di cui il lotto fa parte è stato edificato in forza di: permesso a costruire n. 779, prot. 76602 del 22.12.2010, che richiama il precedente permesso a costruire n.1390 del 28.12.2006. i nuovi tipi prot. 56156 del 20.09.2010 per variante essenziale. il nulla Osta della ASL RM/C prot. 28175 del 06.05.2010. l’atto d’obbligo del 03.11.2010, notaio Giovanni Ungari Trasatti, rep.45011/24562 e detta alcune consuete condizioni generali da rispettare nella conduzione dei lavori. La villetta presenta alcune difformità (al piano terra la distribuzione interna risulta variata rispetto al progetto in merito alla disposizione di bagno e angolo cottura, che risultano invertiti, con la conseguente modifica della posizione delle finestre interessate che vengono anch’esse invertite. In prospetto si evince che la collocazione e proporzione di alcune porte, finestre, porte finestre e parapetti di balconi e terrazzi risulta differente dai disegni di progetto. In particolare, la porta d’ingresso e la vicina portafinestra sono state invertite nella posizione. al piano primo la finestra di una camera è diventata portafinestra con parapetto a filo. i parapetti dei balconi presentano porzioni murarie in luogo di parapetti metallici) meglio descritte nell’elaborato peritale depositato in atti, ed i cui costi di sanatoria sono stati scontati dal valore di stima. L’immobile è stato edificato in regime di edilizia economica e popolare convenzionata in virtù di Convenzione 6.3.08 notaio Ungari Trasatti, rep. 41660, dalla quale discendono obbligazioni ed impegni assunti dal Cessionario (per se e suoi aventi causa) in sede di stipula della Convenzione con il Comune di Roma per la cessione in diritto di proprietà dell’area sulla quale sorge l’immobile. Tra questi, quelli di maggior rilievo sono:-i requisiti soggettivi per la locazione e/o l’acquisto degli alloggi (Leggi n. 457/78, n. 179/92 e L.R. n.12/99)-il prezzo massimo di cessione.I vincoli ed i requisiti soggettivi per la locazione e/o l’acquisto dell’immobile sono i seguenti:a)cittadinanza italiana o cittadinanza ad essa equiparata per legge (stato aderente all’unione europea, o non aderente, sempre che, in tale ultimo caso, il cittadino straniero sia titolare di carta di soggiorno o regolarmente soggiornante e iscritto nelle liste di collocamento o esercitante una regolare attività di lavoro subordinato o di lavoro autonomo)b)residenza o attestazione di attività lavorativa nel Comune di Romac)non avere nel comune di Roma un’altra abitazione adatta alle esigenze del proprio nucleo familiare (tale requisito deve valere anche per il coniuge non legalmente separato)d)non aver ottenuto per se o per altri componenti della famiglia l’assegnazione di una abitazione, in proprietà o in superficie, realizzata o acquistata con il concorso di contributo pubblicoe)obbligo di non vendere gli alloggi prima di cinque anni dal decreto di trasferimento che ne ha determinato l’acquistoin assenza dei predetti requisiti, l’immobile può essere trasferito in favore di soggetto (anche persona giuridica) che abbia acquistato l’immobile pur non in possesso dei predetti requisiti, purchè si obblighi a dare in locazione l’immobile medesimo per un tempo non inferiore a dodici anni Il prezzo di vendita sopra indicato è stato, quindi, determinato tenendo conto dell’esistenza di tali vincoli.Pertanto, l’offerente, al fine di partecipare alla vendita, in aggiunta ai documenti sottoindicati al paragrafo n. 3) deve, a pena di inammissibilità dell’offerta, altresì depositare:-certificato di cittadinanza italiana o di cittadinanza ad essa equiparata per legge (stato aderente all’unione europea, o non aderente, sempre che, in tale ultimo caso, il cittadino straniero sia titolare di carta di soggiorno o regolarmente soggiornante e iscritto nelle liste di collocamento o esercitante una regolare attività di lavoro subordinato o di lavoro autonomo)-certificato di residenza o attestazione di attività lavorativa nel Comune di Roma-dichiarazione di non essere proprietario nel Comune di Roma di altro alloggio adeguato alle esigenze del nucleo familiare e tale requisiti deve valere anche per il coniuge non legalmente separato-dichiarazione non aver ottenuto per se o per altri componenti della famiglia l’assegnazione di una abitazione, in proprietà o in superficie, realizzata o acquistata con il concorso di contributo pubblico-atto d’obbligo notarile avente ad oggetto l’impegno a non cedere l’alloggio per un periodo di cinque anni dall’acquisto (atto che, in caso di aggiudicazione, verrà trascritto dal professionista delegato unitamente al decreto di trasferimento)laddove l’offerente non sia in possesso dei requisiti soggettivi indicati sotto le lettere a), b), c), d), sempre a pena di inammissibilità dell’offerta, deve, in alternativa, depositare -atto d’obbligo notarile avente ad oggetto l’impegno a dare in locazione, nel rispetto delle previsioni contenute nella convenzione e negli atti d’obbligo trascritti, l’alloggio per il quale è stata depositata l’offerta, per un termine non inferiore a dodici anni (atto che, in caso di aggiudicazione, verrà trascritto dal professionista delegato unitamente al decreto di trasferimento)La convenzione, stipulata il 6.3.08, ha durata ventennale. Questa, con i relativi vincoli, decadrà decorso il predetto ventennio (5.3.28) L’immobile è attualmente nella disponibilità della parte esecutata che non vi abita. Emesso ordine di liberazione in corso di esecuzione. Il tutto come meglio descritto nell’elaborato peritale depositato in atti.
DATA ASTA 03 giugno 2026
OFFERTA MINIMA € 66,816.00
Indirizzo
Apri su Google Maps-
Indirizzo: Via Carlo Cassola, Roma, Lazio, 00131
-
Provincia: Roma
-
Regione: Lazio
-
CAP: 00131
Dettagli
Updated on Aprile 4, 2026 at 11:01 pm-
ID Immobile 134475
-
Prezzo €66.816
-
Locale 0
-
Tipologia Casa / Villa
-
Contratto Asta
-
Data asta 03/06/2026
Calcolo mutuo
-
Acconto
-
Importo totale del prestito
-
Rata mensile stimata
-
Assicurazione







